Home

  • About
  • Services
  • Catalog
  • Blog
  • FAQ
  • Contact us
|

  • FR
Sign in

Forgot your password ?

  • Lamps
  • Fixture
  • Components
  • Emergency lighting
  • HVAC and Light Therapy
  • Housekeeping products
  • Select another category
  • Lamps
    • Round shape
    • Spot form
      • PAR & BR
      • MR & GU Form
    • Linear
    • Fluo compact (CFL)
    • Decorative & miniature
    • Other (pin) shape
  • Select another category
  • Fixture
    • Recessed
    • Panel
    • Linear
    • Outside
    • High Bay
    • Decorative
    • Track system
      • Track
      • Projector
      • Accesory
    • Other
  • Select another category
  • Components
    • Ballast & Driver
    • Socket, marette & Accessory
    • Battery
    • Cable
    • Wire guard & lens
    • Accesory & other
  • Select another category
  • Emergency lighting
    • Sign
    • Combo
    • Light
    • Battery pack
  • Select another category
  • HVAC and Light Therapy
    • Stove hood
    • Sweeper & baseboard
    • Accessory
    • Light Therapy
  • Select another category
  • Housekeeping products
    • Bag & paper
      • Paper
      • Bag
    • Chemical
    • Equipment
    • Accessory
  1. Home
  2. Components
  3. Accesory & other
Back to category

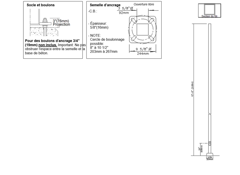
Tube carré de 4po en acier haute résistance, paroi de 3mm

NIS-LUM SQUARE STEEL SPSX
Brand: Philips / Signify

Downloadable Documents :

  • SPEC
Contact us!
  • Home
  • About
  • Services
  • Catalog
  • FAQ
  • Contact us
  • Fr
  • Cookie consent

(514) 356-3222
info@bralco.ca
Bralco
11 700 Av. J.-J. Joubert
Montréal H1E 7E7
Bralco logo
Copyright 2026 - Bralco